The Property
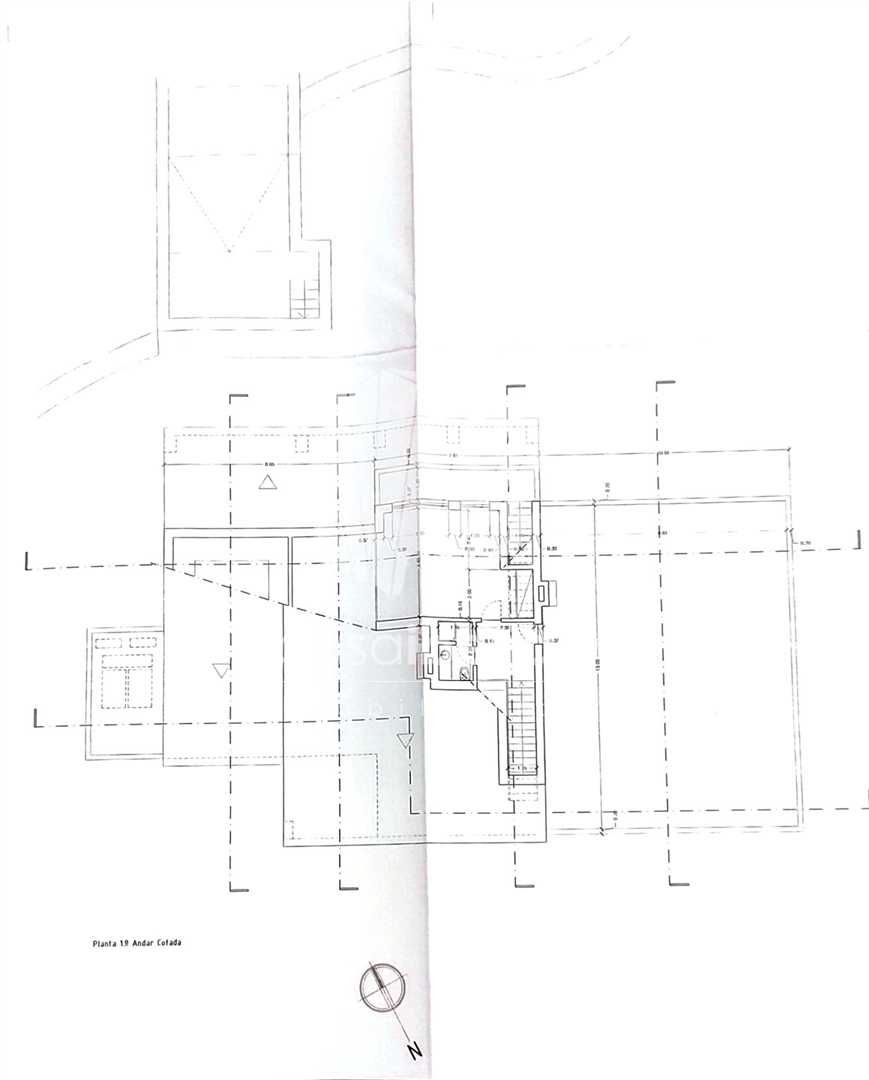
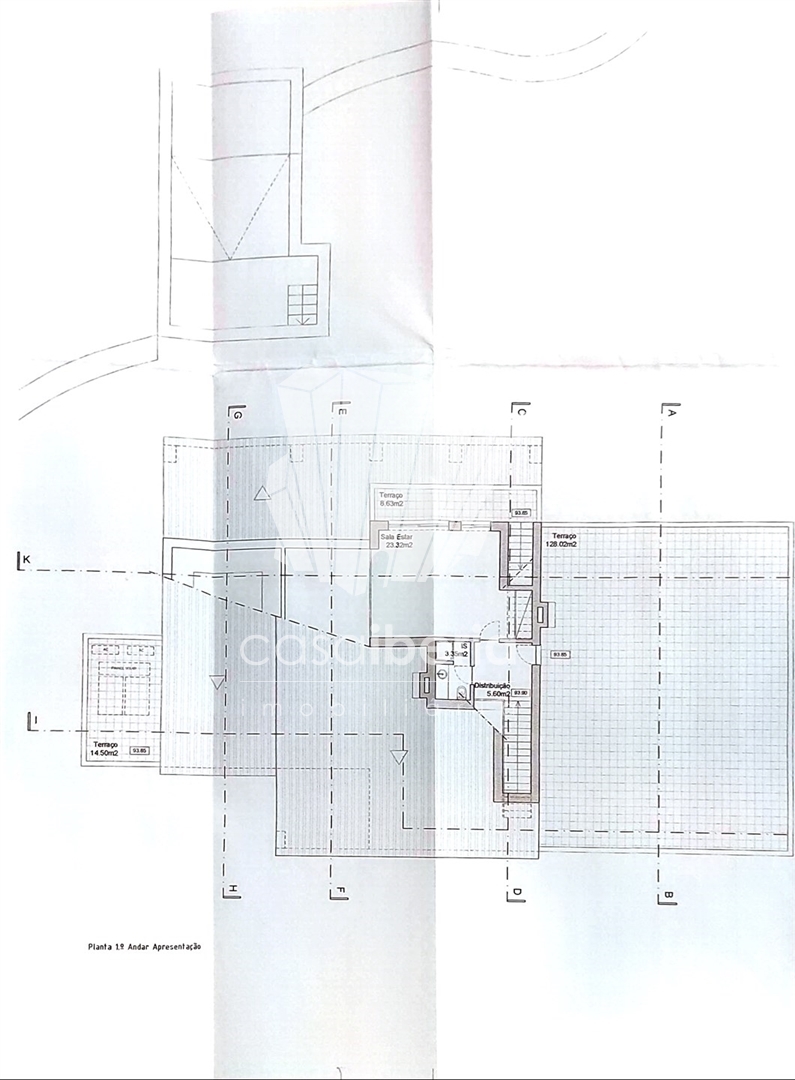
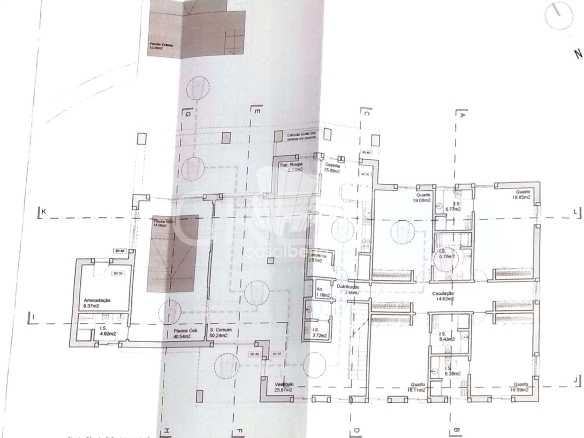
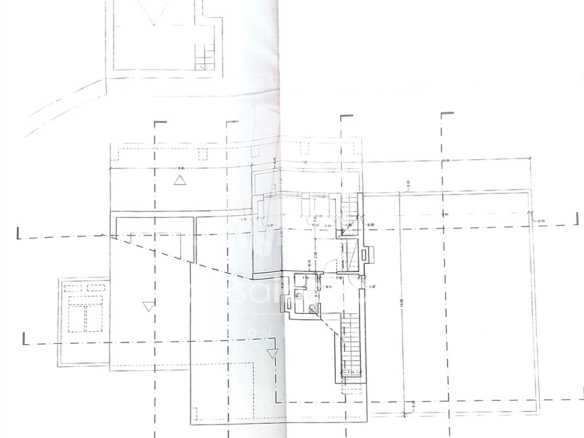
Urban Land of 8250m2 with an authorisation for an allotment or housring project.
Situated in a privileged location, surrounded by nature, with good access to all the main services and shops, making this land a unique investment opportunity to build and enjoy the charms of a village in the Algarve has to offer.
Located only 10 kms from Faro airport and 20 minutes from the golf courses and wonderful beaches.
Weather you choose to build your permenant residence or looking for a secure investment with garanteed profitability this can be considered as a safe investment.
Estoi is a small village, with under four thousand residents, but boasting a great architectural wealth with its traditional Algarve houses, a charming palace that has been fully restored and the Roman ruins of Milreu.
Schedule your visit with us Come and check out the project that we have for you.
Town & District: Faro, Faro – Zone and area Estoi, Conceição e Estoi
Overview
- PLOT
- 0
- 8250
- 0
- RCCI-7178-3618
The Location
-
Address: Faro, Faro
-
Area | Locality: Faro
-
Region: FARO
-
Country: PORTUGAL
Mortgage Calculator
-
Deposit
-
Loan Amount
-
Monthly Mortgage Payment
-
Property Tax
-
Home Insurance
-
PMI
-
Monthly HOA Fees
Your Sales Agent
VIEW LISTINGSimilar Listings
Plots & Land Parcels in Pissouri with 0 bedrooms
Pissouri, LIMASSOL, CYPRUS- Bed: 0
- Bath: 0
- PLOT
Plots & Land Parcels in Souni-Zanatzia with 0 bedrooms
Souni-Zanatzia, LIMASSOL, CYPRUS- Bed: 0
- Bath: 0
- PLOT












